LOGIN
HOME
CATEGORIES
UPLOAD FILE
PRICING
HOUSE PLAN
ABOUT US
CONTACT US
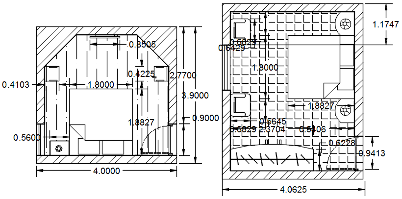
Bedroom layout in AutoCAD
Home
Categories
Interior Design
Bedroom Interiors
Bedroom layout in AutoCAD
Uploaded by:
K.H.J
Jani
View Profile
View Profile
Description
Bedroom layout in AutoCAD it includes furniture layout,floor layout it also include bed,study table,wardrobe,tv cabinet,etc
File Type:
DWG
File Size:
84 KB
Category::
Interior Design
Sub Category::
Bedroom Interiors
type:
Gold
Uploaded by:
K.H.J
Jani
View Profile
Download
Add to libary
find Latest
Related
Files