LOGIN
HOME
CATEGORIES
UPLOAD FILE
PRICING
HOUSE PLAN
ABOUT US
CONTACT US
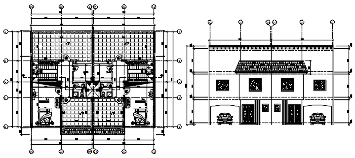
Dwg file residential house elevation
Home
Categories
Architecture
House Plan
Dwg file residential house elevation
Uploaded by:
K.H.J
Jani
View Profile
View Profile
Description
Dwg file residential house elevation it include roof plan,elevation it also includes dining,kitchen,master bedroom,kids bedroom,balcony,bathroom,etc
File Type:
DWG
File Size:
2 MB
Category::
Architecture
Sub Category::
House Plan
type:
Gold
Uploaded by:
K.H.J
Jani
View Profile
Download
Add to libary
find Latest
Related
Files