LOGIN
HOME
CATEGORIES
UPLOAD FILE
PRICING
HOUSE PLAN
ABOUT US
CONTACT US
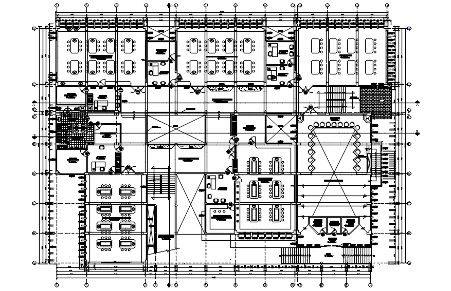
Architectural plan of institute design in AutoCAD
Home
Categories
Architecture
University
Architectural plan of institute design in AutoCAD
Uploaded by:
Eiz
Luna
View Profile
View Profile
Description
Architectural plan of institute design in AutoCAD which provide detail of class, hall, meeting room, administration room, washroom, toilet, etc.
File Type:
DWG
File Size:
950 KB
Category::
Architecture
Sub Category::
University
type:
Gold
Uploaded by:
Eiz
Luna
View Profile
Download
Add to libary
find Latest
Related
Files