Plan of the house with detail dimension in dwg file
Description
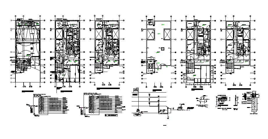
Plan of the house with detail dimension in dwg file which provide detail of electric layout of different floor, detail dimension of the hall, bedroom, kitchen with dining area, bathroom, toilet, etc it also gives detail of terrace plan.

Uploaded by:
Eiz
Luna

