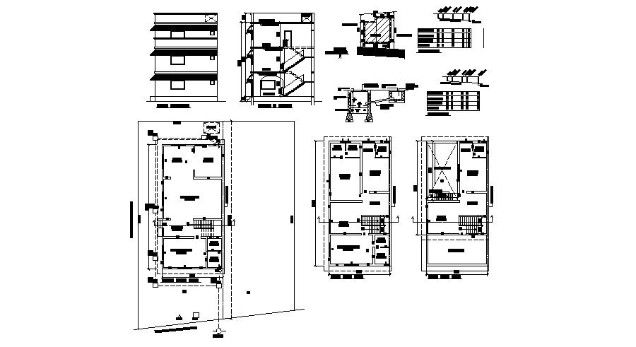
Residential house with 15.90mtr 7.79mtr with elevation and section in AutoCAD
Description
Residential house with 15.90mtr 7.79mtr with elevation and section in AutoCAD which provides detail of front elevation, detail dimension of the drawing room, bedroom, kitchen with dining room, bathroom, toilet, etc.

Uploaded by:
Eiz
Luna

