LOGIN
HOME
CATEGORIES
UPLOAD FILE
PRICING
HOUSE PLAN
ABOUT US
CONTACT US
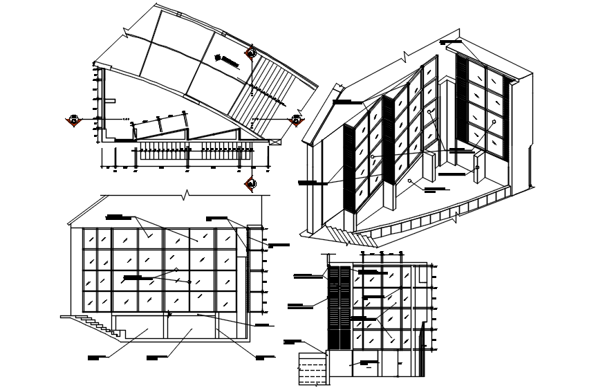
Autocad drawing of construction detail
Home
Categories
Details
Construction Details
Autocad drawing of construction detail
Uploaded by:
K.H.J
Jani
View Profile
View Profile
Description
Autocad drawing of construction detail it include polycarbonate wall detail,section,elevation,isometric view,etc
File Type:
DWG
File Size:
1.8 MB
Category::
Details
Sub Category::
Construction Details
type:
Gold
Uploaded by:
K.H.J
Jani
View Profile
Download
Add to libary
find Latest
Related
Files