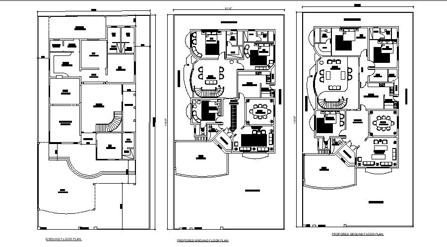
Residential house 61' x 116' with furniture detail in AutoCAD
Description
Residential house 61' x 116' with furniture detail in AutoCAD which includes detail of drawing room, bedroom, kitchen, dining room, lounge, guest room, bathroom, toilet, etc it also provides lawn area, porch.

Uploaded by:
Eiz
Luna

