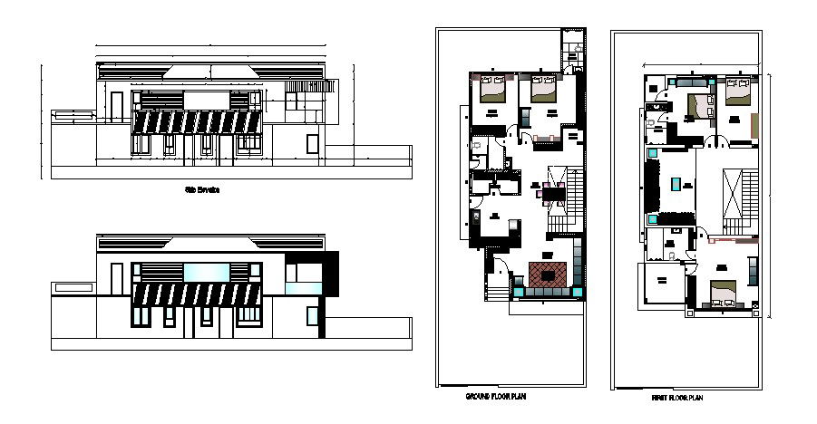
Bungalow 28'3'' x 27'6'' with elevation in AutoCAD
Description
Bungalow 28'3'' x 27'6'' with elevation in AutoCAD which includes detail of side elevation, detail dimension of the drawing room, bedroom, kitchen, dining room, bathroom, toilet, etc it also gives detail of floor level.

Uploaded by:
Eiz
Luna
