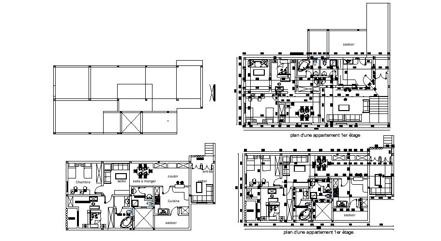
Villa plan 17.76mtr x 8.17mtr with detail dimension in AutoCAD
Description
Villa plan 17.76mtr x 8.17mtr with detail dimension in AutoCAD which provides detail of hall, bedroom, kitchen with dining room, bathroom, toilet, etc it also gives detail of furniture.

Uploaded by:
Eiz
Luna
