Electric layout plan of the villa with detail dimension in dwg file
Description
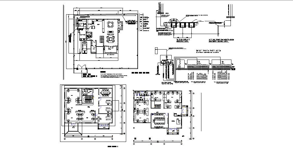
Electric layout plan of the villa with detail dimension in dwg file which provides detail of electric unit, detail dimension of the reception area, meeting room, office area, hall, bedroom, kitchen area, garage, etc.

Uploaded by:
Eiz
Luna

