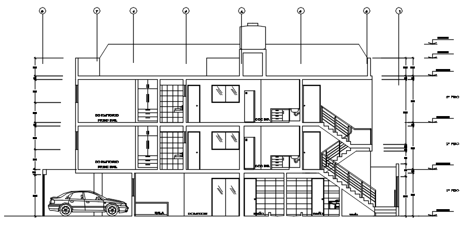
Section drawing of the apartment design in dwg file
Description
Section drawing of the apartment design in dwg file which provides detail of floor level, room, kitchen, doors and windows, detail of parking area, etc.

Uploaded by:
Eiz
Luna

Uploaded by:
Luna