Plan of house design with detail dimension in dwg file
Description
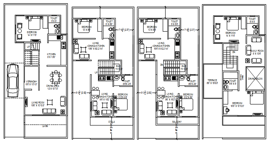
Plan of house design with detail dimension in dwg file which provides detail of hall, bedroom, kitchen with dining area, bathroom, toilet, etc.

Uploaded by:
Eiz
Luna

Uploaded by:
Luna