LOGIN
HOME
CATEGORIES
UPLOAD FILE
PRICING
HOUSE PLAN
ABOUT US
CONTACT US
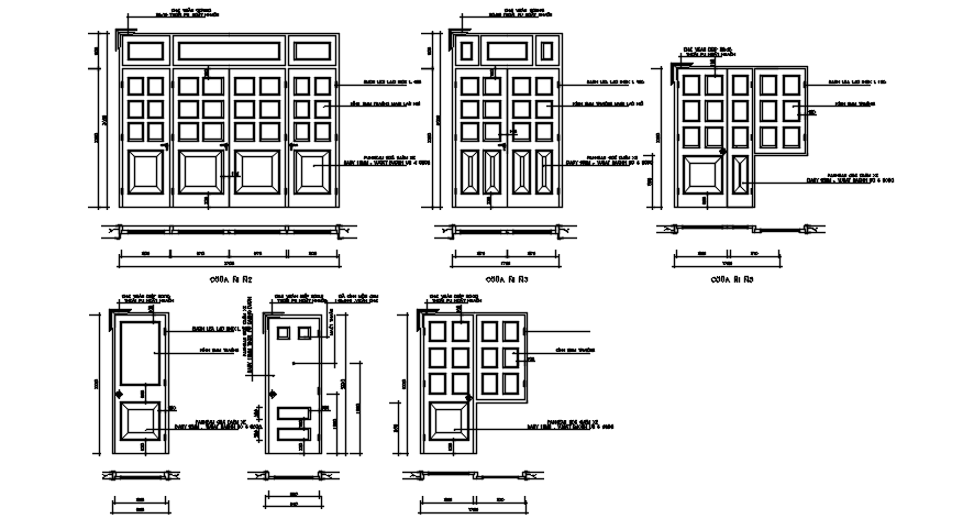
Autocad drawing of double doors
Home
Categories
Details
Interior Details
Autocad drawing of double doors
Uploaded by:
K.H.J
Jani
View Profile
View Profile
Description
Autocad drawing of double doors it includes plan,elevation,section it also includes double door, single doors with dimensions,etc
File Type:
DWG
File Size:
372 KB
Category::
Details
Sub Category::
Interior Details
type:
Gold
Uploaded by:
K.H.J
Jani
View Profile
Download
Add to libary
find Latest
Related
Files