LOGIN
HOME
CATEGORIES
UPLOAD FILE
PRICING
HOUSE PLAN
ABOUT US
CONTACT US
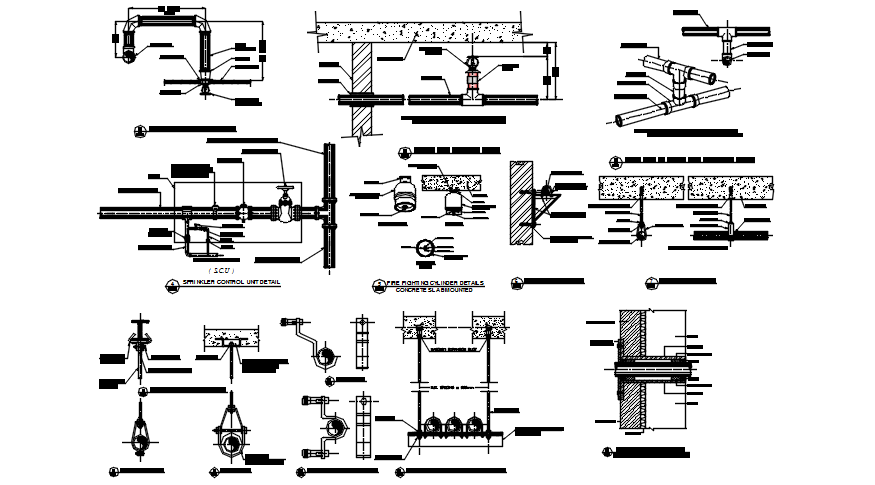
Autocad drawing of fire fighting detail
Home
Categories
Electrical
Interior Design Electrical
Autocad drawing of fire fighting detail
Uploaded by:
K.H.J
Jani
View Profile
View Profile
Description
Autocad drawing of fire fighting detail it includes sprinkler detail, line connection detail,wall bracket detail,etc
File Type:
DWG
File Size:
3.4 MB
Category::
Electrical
Sub Category::
Interior Design Electrical
type:
Gold
Uploaded by:
K.H.J
Jani
View Profile
Download
Add to libary
find Latest
Related
Files