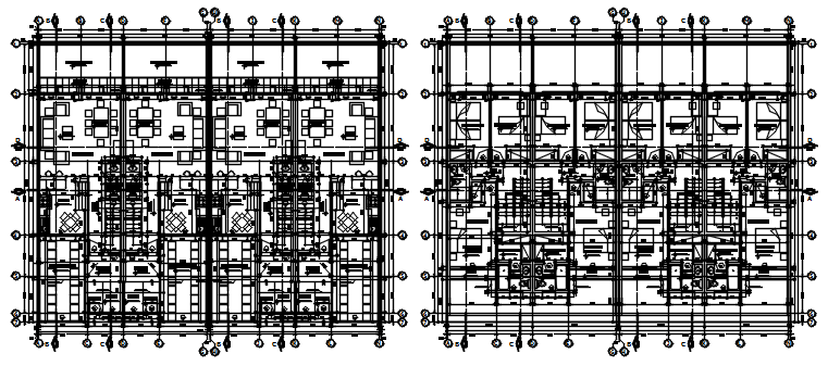
Apartment design 5.00mtr x 17.15mtr with furniture details in AutoCAD
Description
Apartment design 5.00mtr x 17.15mtr with furniture details in AutoCAD which provide detail of hall, bedroom, kitchen, dining area, bathroom, toilet, etc it also gives detail of the garden area.

Uploaded by:
Eiz
Luna

