2 storey house plan with interior design in dwg file
Description
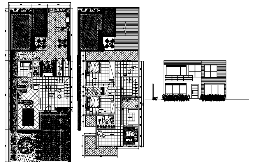
2 storey house plan with interior design in dwg file which provides detail of drawing room, bedroom, kitchen, dining room, bathroom, toilet, parking area, garden area, etc it also gives detail of front elevation.

Uploaded by:
Eiz
Luna

