LOGIN
HOME
CATEGORIES
UPLOAD FILE
PRICING
HOUSE PLAN
ABOUT US
CONTACT US
3 storey house design in autocad
Home
Categories
Architecture
House Plan
3 storey house design in autocad
Uploaded by:
Eiz
Luna
View Profile
View Profile
Description
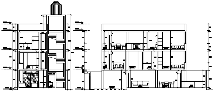
3 storey house design in autocad which provides detail of the section, detail of floor level, detail of doors and windows, etc.
File Type:
DWG
File Size:
575 KB
Category::
Architecture
Sub Category::
House Plan
type:
Gold
Uploaded by:
Eiz
Luna
View Profile
Download
Add to libary
find Latest
Related
Files