LOGIN
HOME
CATEGORIES
UPLOAD FILE
PRICING
HOUSE PLAN
ABOUT US
CONTACT US
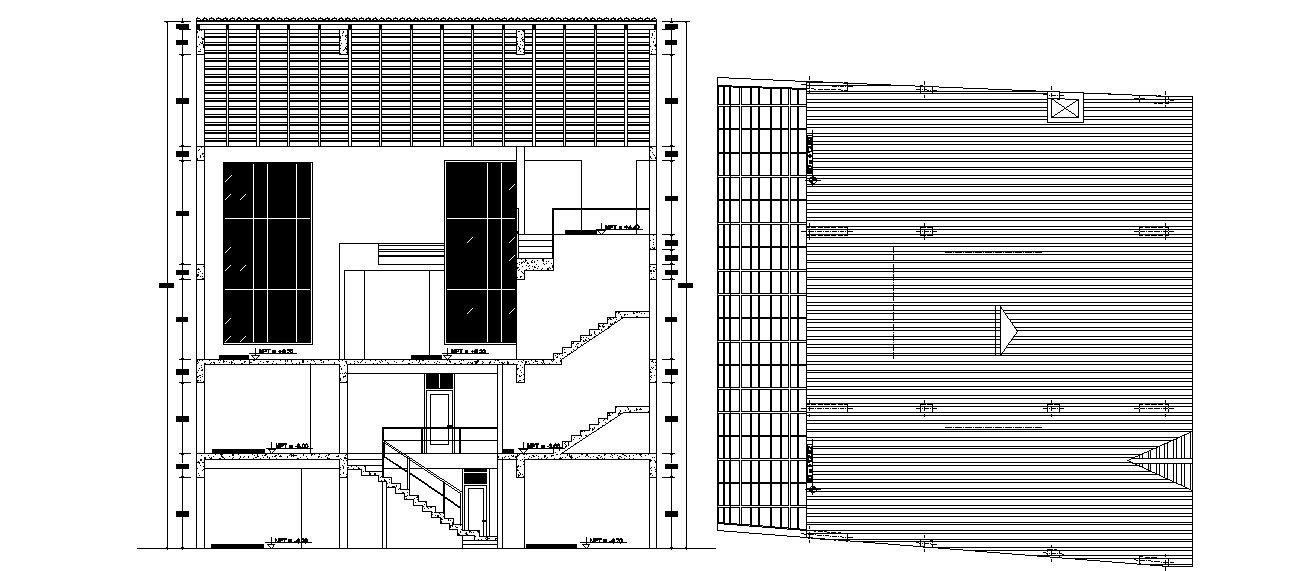
Autocad drawing of sectional elevation of restaurant
Home
Categories
Architecture
Hotels and Restaurants
Autocad drawing of sectional elevation of restaurant
Uploaded by:
K.H.J
Jani
View Profile
View Profile
Description
Autocad drawing of sectional elevation of restaurant it includes rooftop, section it also includes floor level,staircase,doors,windows,etc
File Type:
DWG
File Size:
943 KB
Category::
Architecture
Sub Category::
Hotels and Restaurants
type:
Gold
Uploaded by:
K.H.J
Jani
View Profile
Download
Add to libary
find Latest
Related
Files