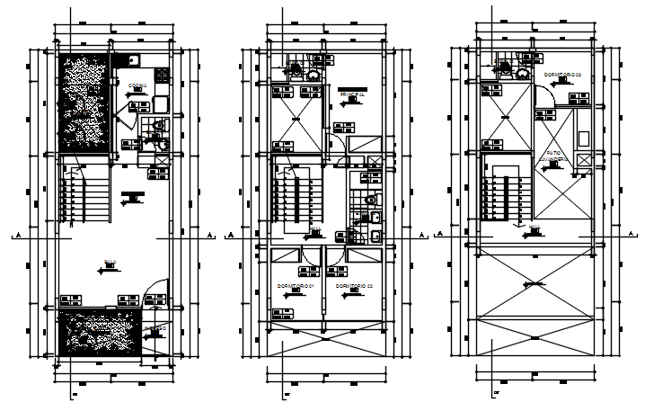
Autocad Drawing of house 5.00mtr x 13.00mtr with detail dimension
Description
Autocad Drawing of house 5.00mtr x 13.00mtr with detail dimension which provides detail of hall, bedroom, kitchen with dining area, bathroom, toilet, etc it also gives detail of terrace plan.

Uploaded by:
Eiz
Luna

