LOGIN
HOME
CATEGORIES
UPLOAD FILE
PRICING
HOUSE PLAN
ABOUT US
CONTACT US
Multistorey hotel building in autocad
Home
Categories
Architecture
Hotels and Restaurants
Multistorey hotel building in autocad
Uploaded by:
Eiz
Luna
View Profile
View Profile
Description
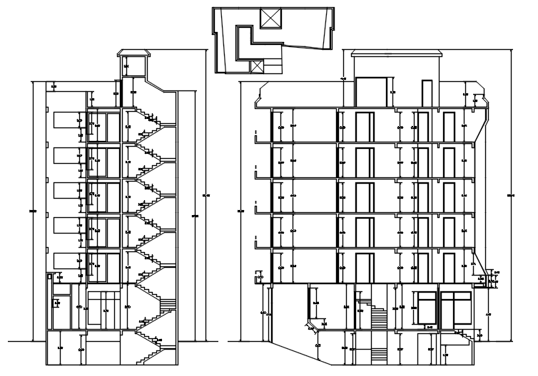
Multistorey hotel building in autocad which provides detail of different sections, detail of floor level, detail of doors and windows, staircase, etc.
File Type:
DWG
File Size:
411 KB
Category::
Architecture
Sub Category::
Hotels and Restaurants
type:
Gold
Uploaded by:
Eiz
Luna
View Profile
Download
Add to libary
find Latest
Related
Files