LOGIN
HOME
CATEGORIES
UPLOAD FILE
PRICING
HOUSE PLAN
ABOUT US
CONTACT US
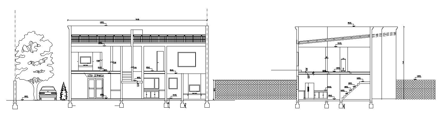
Sections of residential bungalows in Autocad
Home
Categories
Architecture
Bungalow House Design
Sections of residential bungalows in Autocad
Uploaded by:
K.H.J
Jani
View Profile
View Profile
Description
Sections of residential bungalows in Autocad it includes sections, floor level, parking area, compound wall,etc
File Type:
DWG
File Size:
589 KB
Category::
Architecture
Sub Category::
Bungalow House Design
type:
Gold
Uploaded by:
K.H.J
Jani
View Profile
Download
Add to libary
find Latest
Related
Files