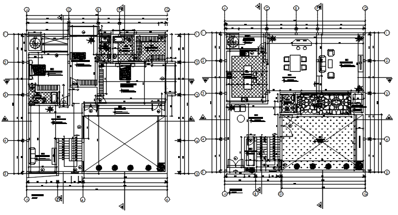
Design of house 17.13mtr x 17.00mtr with furniture detail in dwg file
Description
Design of house 17.13mtr x 17.00mtr with furniture detail in dwg file which provides detail of the garden area, drawing room, bedroom, kitchen, dining room, bathroom, toilet, etc.

Uploaded by:
Eiz
Luna

