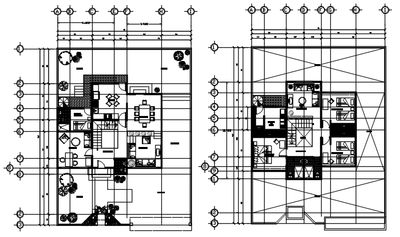
Plan of bungalow 15.00mtr x 19.08mtr with detail dimension in dwg file
Description
Plan of bungalow 15.00mtr x 19.08mtr with detail dimension in dwg file which includes detail of hall, bedroom, kitchen with dining area, bathroom, toilet, etc it also gives detail of furniture.

Uploaded by:
Eiz
Luna

