LOGIN
HOME
CATEGORIES
UPLOAD FILE
PRICING
HOUSE PLAN
ABOUT US
CONTACT US
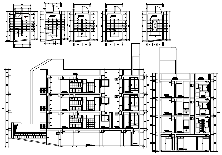
Residential Apartment design in autocad
Home
Categories
Architecture
Apartment Drawing
Residential Apartment design in autocad
Uploaded by:
Eiz
Luna
View Profile
View Profile
Description
Residential Apartment design in autocad which includes detail of the different section, detail of floor level, etc it also gives detail of staircase.
File Type:
DWG
File Size:
668 KB
Category::
Architecture
Sub Category::
Apartment Drawing
type:
Gold
Uploaded by:
Eiz
Luna
View Profile
Download
Add to libary
find Latest
Related
Files