Hotel Floor Plan In AutoCAD File
Description
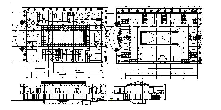
Hotel Floor Plan In Autocad File which includes detail of the cafe area, hall, waiting area, rooms, kitchen area, washroom. It also gives detail of sections, floor level.

Uploaded by:
Eiz
Luna

Uploaded by:
Luna