LOGIN
HOME
CATEGORIES
UPLOAD FILE
PRICING
HOUSE PLAN
ABOUT US
CONTACT US
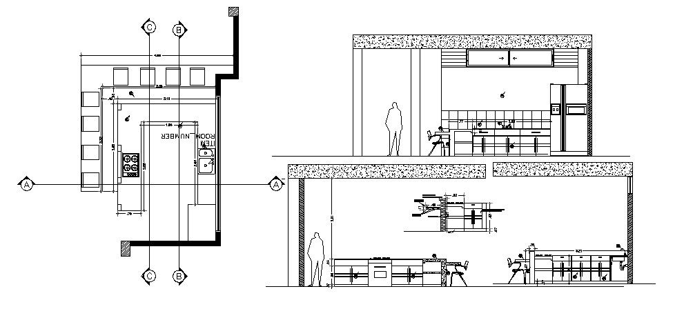
Kitchen Design Drawing In DWG File
Home
Categories
Architecture
Kitchen Interiors
Kitchen Design Drawing In DWG File
Uploaded by:
Eiz
Luna
View Profile
View Profile
Description
Kitchen Design Drawing In DWG File which provides sectional details of the kitchen, detail of furniture, detail of floor area.
File Type:
DWG
File Size:
734 KB
Category::
Architecture
Sub Category::
Kitchen Interiors
type:
Gold
Uploaded by:
Eiz
Luna
View Profile
Download
Add to libary
find Latest
Related
Files