LOGIN
HOME
CATEGORIES
UPLOAD FILE
PRICING
HOUSE PLAN
ABOUT US
CONTACT US
Small Bungalow Plan In DWG File
Home
Categories
Architecture
Bungalow House Design
Small Bungalow Plan In DWG File
Uploaded by:
Eiz
Luna
View Profile
View Profile
Description
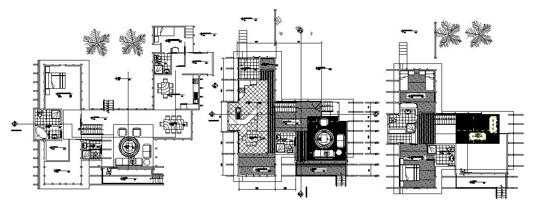
Small Bungalow Plan In DWG File which provides detail of drawing room, bedroom, kitchen, dining room, bathroom, toilet, lawn area. It also gives detail of furniture.
File Type:
DWG
File Size:
2 MB
Category::
Architecture
Sub Category::
Bungalow House Design
type:
Gold
Uploaded by:
Eiz
Luna
View Profile
Download
Add to libary
find Latest
Related
Files