House Plan With Furniture In AutoCAD File
Description
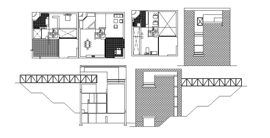
House Plan With Furniture In AutoCAD File which includes detail of drawing room, bedroom, kitchen, dining room, bathroom. It also gives detail of the section.

Uploaded by:
Eiz
Luna

Uploaded by:
Luna