LOGIN
HOME
CATEGORIES
UPLOAD FILE
PRICING
HOUSE PLAN
ABOUT US
CONTACT US
Office Design Plan In DWG File
Home
Categories
Architecture
Corporate Building
Office Design Plan In DWG File
Uploaded by:
K.H.J
Jani
View Profile
View Profile
Description
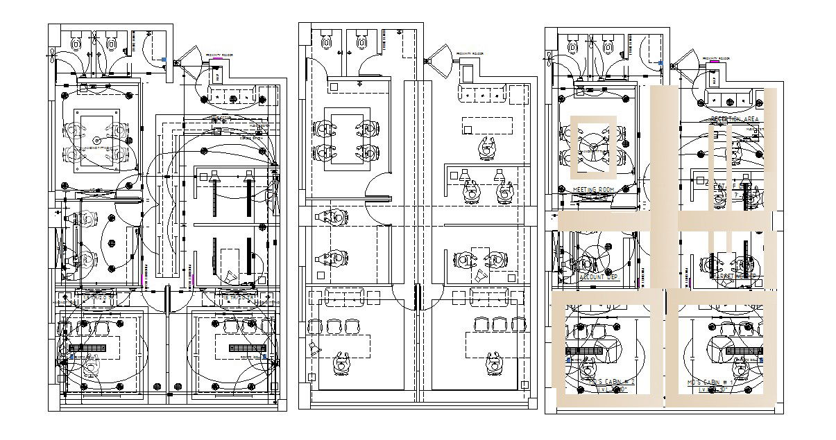
Office Design Plan In DWG File it includes electrical layout, ceiling layout it also includes workstation, cabin, waiting room, reception, meeting room, pantry.
File Type:
DWG
File Size:
2.2 MB
Category::
Architecture
Sub Category::
Corporate Building
type:
Gold
Uploaded by:
K.H.J
Jani
View Profile
Download
Add to libary
find Latest
Related
Files