Commercial Office Design In AutoCAD File
Description
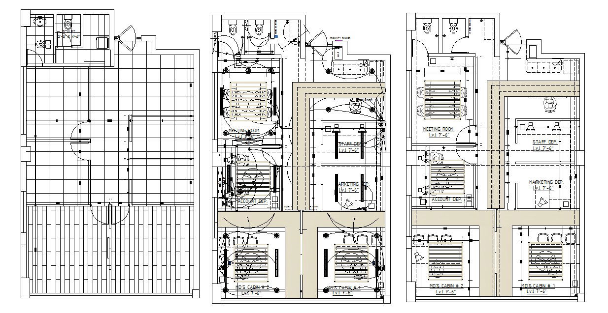
Commercial Office Design In AutoCAD File it includes electrical layout, ceiling layout, flooring layout it includes workstation, cabin, waiting room, reception, meeting room, pantry.
Uploaded by:
K.H.J
Jani

