Download Free Commercial Office Layout In DWG File
Description
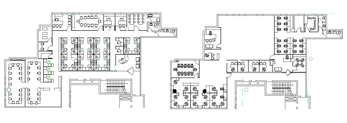
Download Free Commercial Office Layout In DWG File it includes ground floor layout, first-floor layout it also includes a reception area, waiting area, conference room, meeting room, workstation, cabins, managers cabin, pantry, storage.
Uploaded by:
K.H.J
Jani
