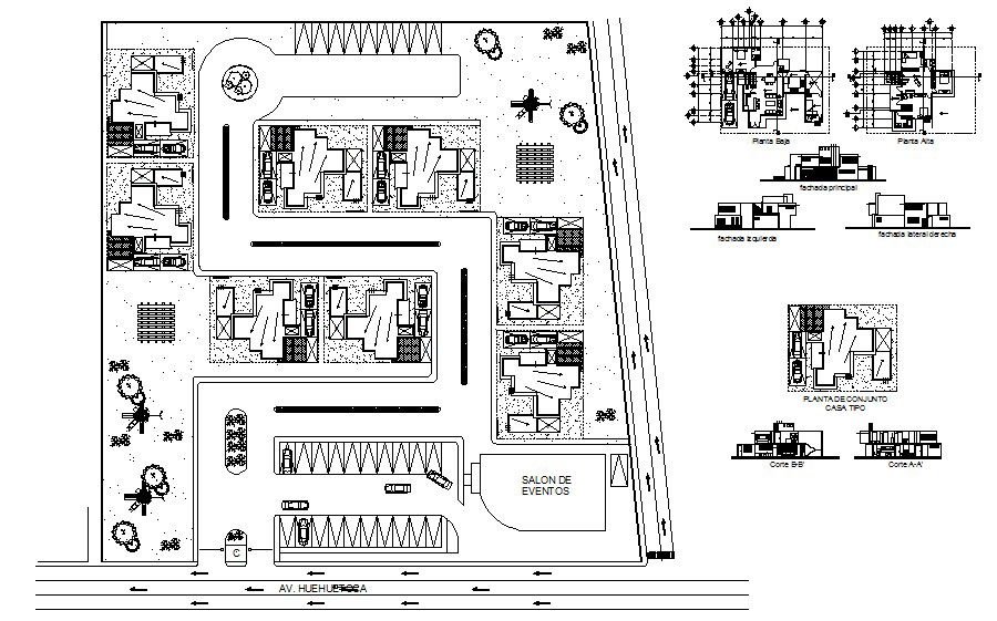
Bungalow plan18.71mtr x 13.75mtr with elevation and section in autocad
Description
Bungalow plan 18.71mtr x 13.75mtr with elevation and section in autocad it provides detail of hall, bedroom, kitchen, dining area, bathroom and toilet, etc it also gives detail of roof plan.

Uploaded by:
Eiz
Luna
