Design of bungalow with elevation and section in dwg file
Description
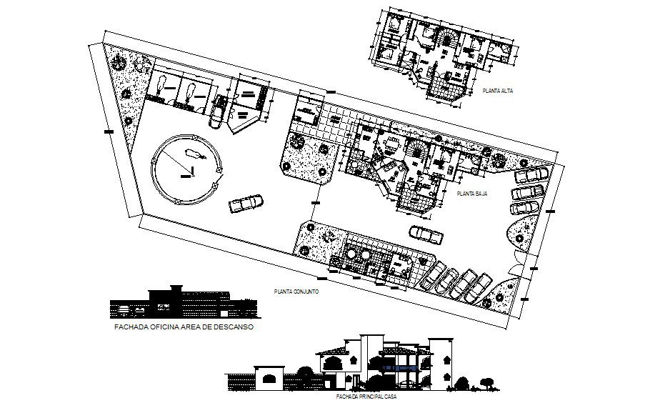
Design of bungalow with elevation and section in dwg file which provides detail of hall, bedroom, kitchen, dining area, bathroom, toilet, etc it also gives detail of the parking area.

Uploaded by:
Eiz
Luna

