House drawing 16.57mtr x 40.16mtr with detail dimension in autocad
Description
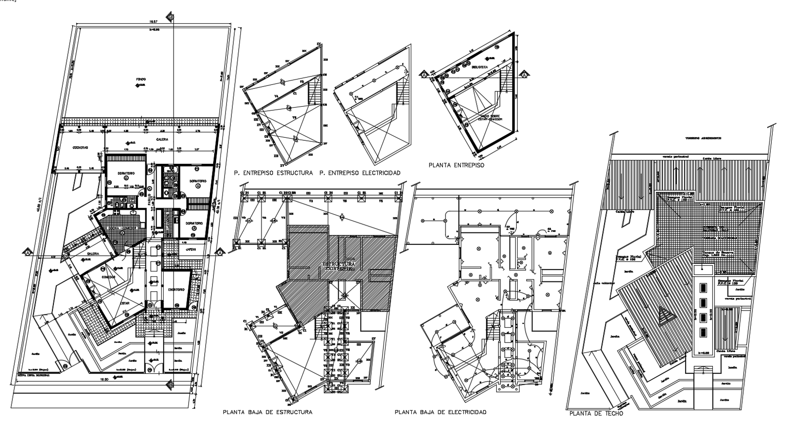
House drawing 16.57mtr x 40.16mtr with detail dimension in autocad which provides detail of drawing room, bedroom, kitchen, dining room, bathroom, toilet, etc it also gives detail of roof plan.

Uploaded by:
Eiz
Luna

