LOGIN
HOME
CATEGORIES
UPLOAD FILE
PRICING
HOUSE PLAN
ABOUT US
CONTACT US
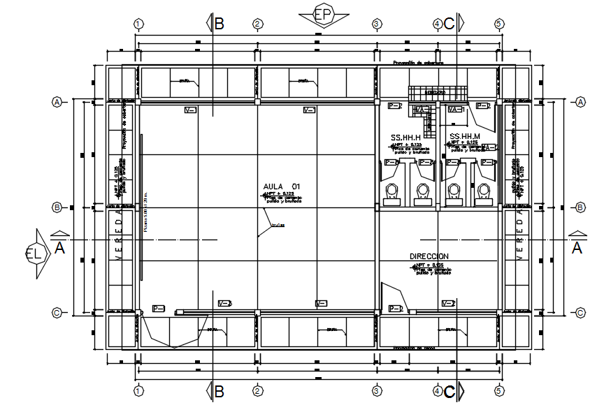
Site plan of the villa
Home
Categories
Architecture
House Plan
Site plan of the villa
Uploaded by:
K.H.J
Jani
View Profile
View Profile
Description
Site plan of the villa it include floor layout,it also includes site plan,toilets,space planning,etc
File Type:
DWG
File Size:
4 MB
Category::
Architecture
Sub Category::
House Plan
type:
Gold
Uploaded by:
K.H.J
Jani
View Profile
Download
Add to libary
find Latest
Related
Files