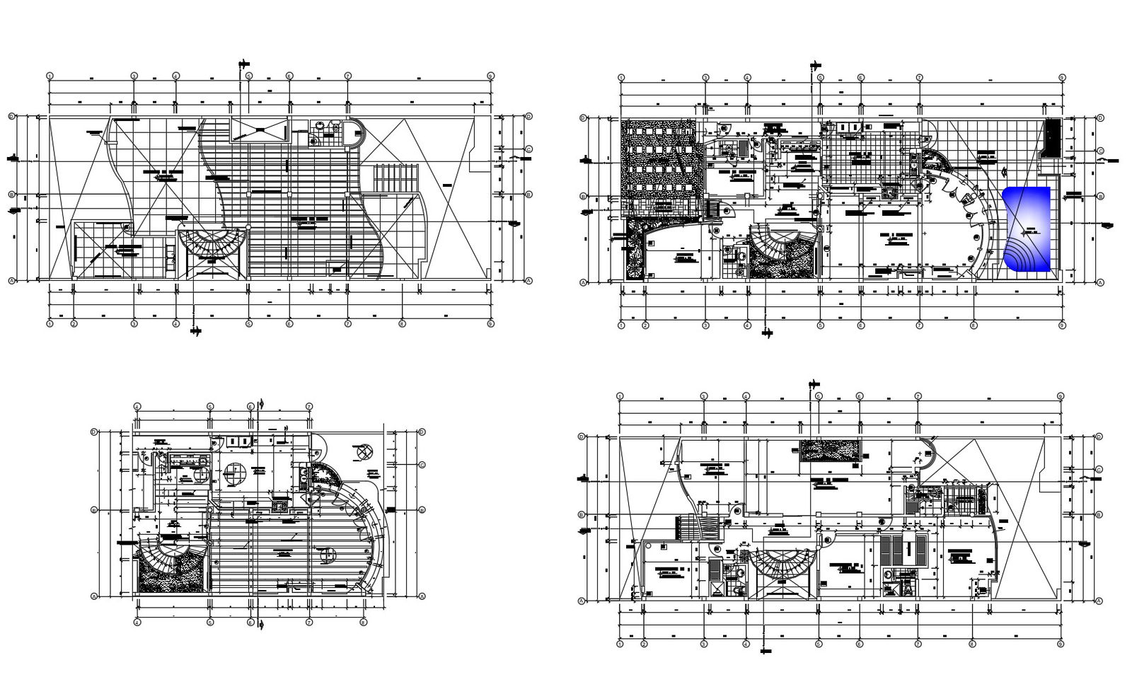
Plan of bungalow 26.80mtr x 10.00mtr with detail dimension in dwg file
Description
Plan of bungalow 26.80mtr x 10.00mtr with detail dimension in dwg file which provides detail of hall, bedroom, kitchen, dining area, bathroom, toilet, garden area, car parking, etc it also includes detail of terrace plan.

Uploaded by:
Eiz
Luna

