LOGIN
HOME
CATEGORIES
UPLOAD FILE
PRICING
HOUSE PLAN
ABOUT US
CONTACT US
Electrical layout in dwg file
Home
Categories
Electrical
Interior Design Electrical
Electrical layout in dwg file
Uploaded by:
K.H.J
Jani
View Profile
View Profile
Description
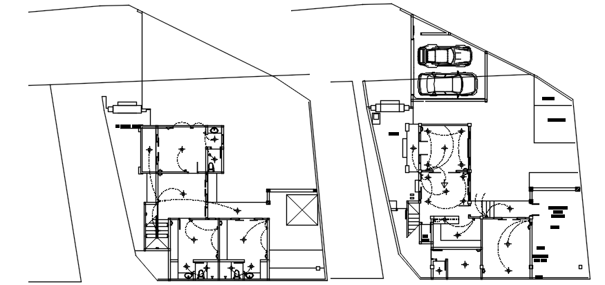
Electrical layout in dwg file it include the ground floor,first floor it also includes wall points, ceiling points, wiring,etc
File Type:
DWG
File Size:
316 KB
Category::
Electrical
Sub Category::
Interior Design Electrical
type:
Gold
Uploaded by:
K.H.J
Jani
View Profile
Download
Add to libary
find Latest
Related
Files