LOGIN
HOME
CATEGORIES
UPLOAD FILE
PRICING
HOUSE PLAN
ABOUT US
CONTACT US
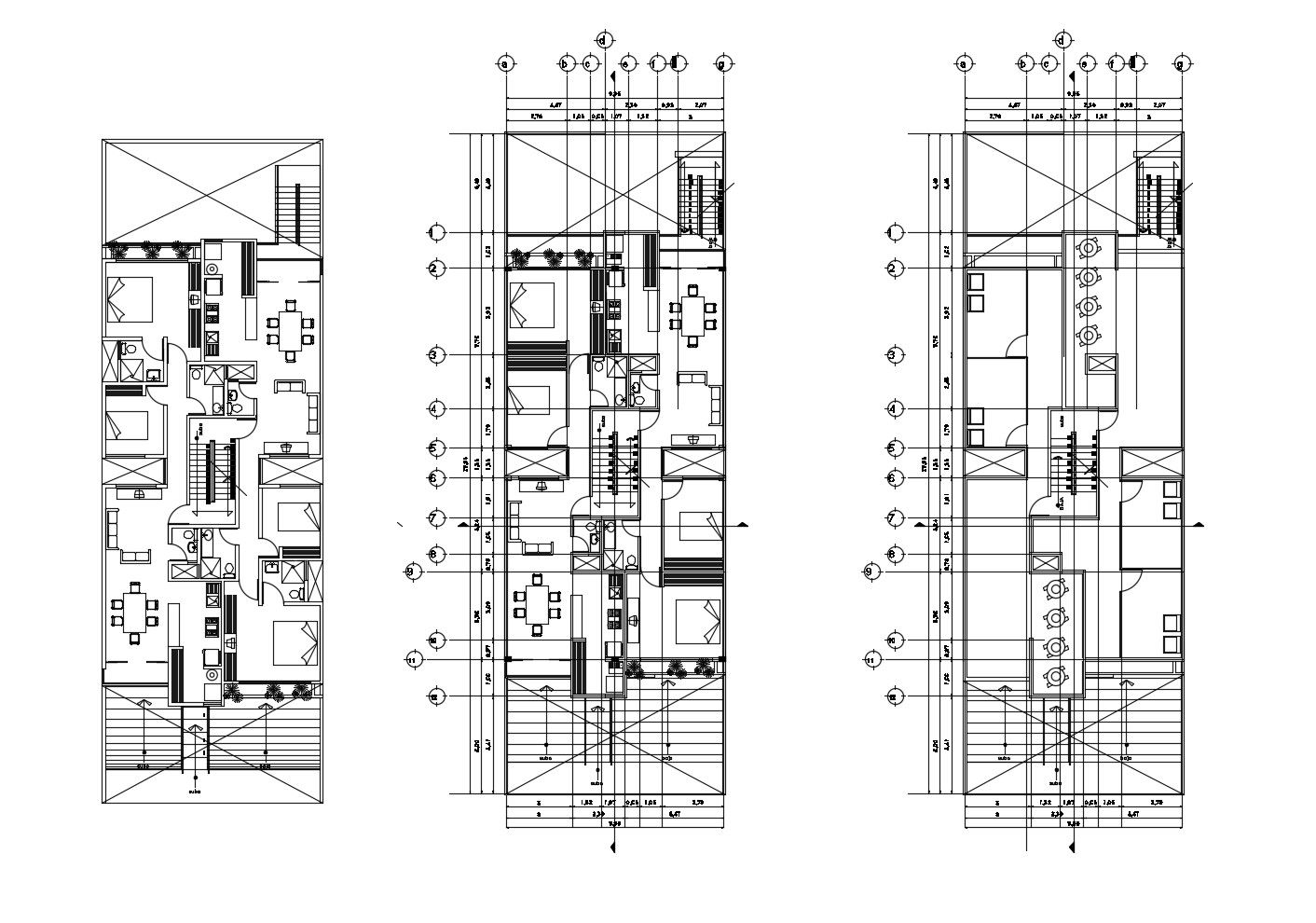
Dwg file of Apartment design with furniture details
Home
Categories
Architecture
Apartment Drawing
Dwg file of Apartment design with furniture details
Uploaded by:
Eiz
Luna
View Profile
View Profile
Description
Dwg file of Apartment design with furniture details which provide detail of drawing room, bedroom, kitchen, dining room, bathroom, toilet, etc.
File Type:
DWG
File Size:
369 KB
Category::
Architecture
Sub Category::
Apartment Drawing
type:
Gold
Uploaded by:
Eiz
Luna
View Profile
Download
Add to libary
find Latest
Related
Files