LOGIN
HOME
CATEGORIES
UPLOAD FILE
PRICING
HOUSE PLAN
ABOUT US
CONTACT US
Institute layout in dwg file
Home
Categories
Architecture
University
Institute layout in dwg file
Uploaded by:
K.H.J
Jani
View Profile
View Profile
Description
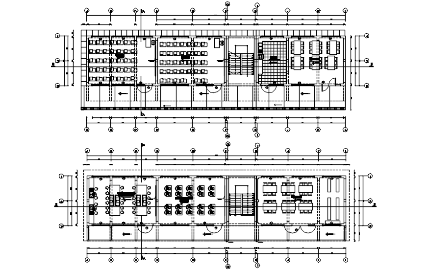
Institute layout in dwg file it includes ground floor layout, furniture layout it also includes reception, office, admin area, canteen, classroom, basketball,etc
File Type:
DWG
File Size:
570 KB
Category::
Architecture
Sub Category::
University
type:
Gold
Uploaded by:
K.H.J
Jani
View Profile
Download
Add to libary
find Latest
Related
Files