Residential house plan with foundation plan in autocad
Description
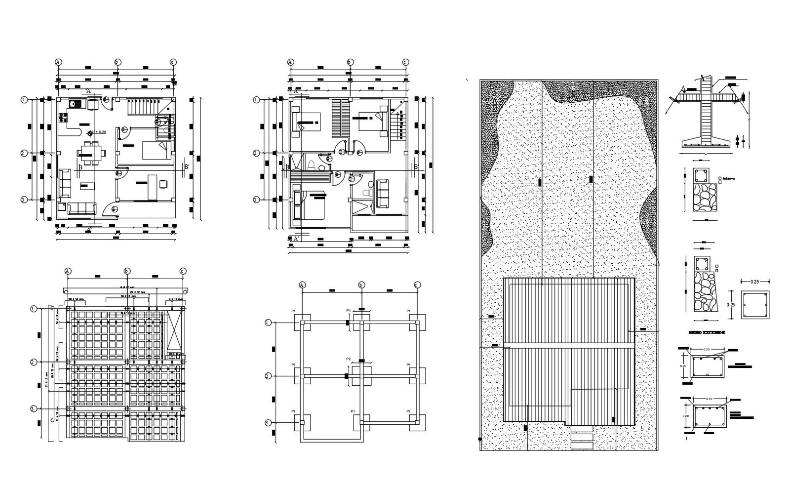
Residential house plan with foundation plan in autocad which provides detail of drawing room, bedroom, kitchen, dining room, bathroom, toilet, etc.

Uploaded by:
Eiz
Luna

Uploaded by:
Luna