LOGIN
HOME
CATEGORIES
UPLOAD FILE
PRICING
HOUSE PLAN
ABOUT US
CONTACT US
Sectional elevation of the hospital in Autocad
Home
Categories
Architecture
Hospital Projects
Sectional elevation of the hospital in Autocad
Uploaded by:
K.H.J
Jani
View Profile
View Profile
Description
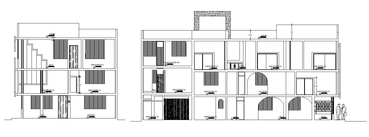
Sectional elevation of the hospital in Autocad it includes sectional elevation, front facade it also includes floor level, rooms,etc
File Type:
DWG
File Size:
531 KB
Category::
Architecture
Sub Category::
Hospital Projects
type:
Gold
Uploaded by:
K.H.J
Jani
View Profile
Download
Add to libary
find Latest
Related
Files