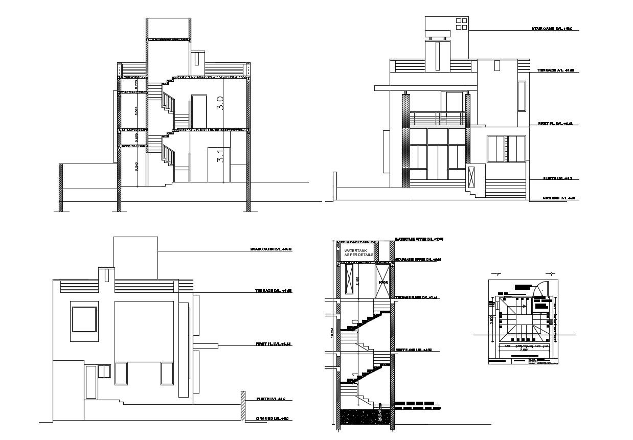
Dwg file of 2 storey house with elevation and section
Description
Dwg file of 2 storey house with elevation and section in which provides detail of front elevation, side elevation, detail of floor level, detail of the section, detail of staircase, etc.

Uploaded by:
Eiz
Luna

