LOGIN
HOME
CATEGORIES
UPLOAD FILE
PRICING
HOUSE PLAN
ABOUT US
CONTACT US
House plan with detail dimension in autocad
Home
Categories
Architecture
House Plan
House plan with detail dimension in autocad
Uploaded by:
Eiz
Luna
View Profile
View Profile
Description
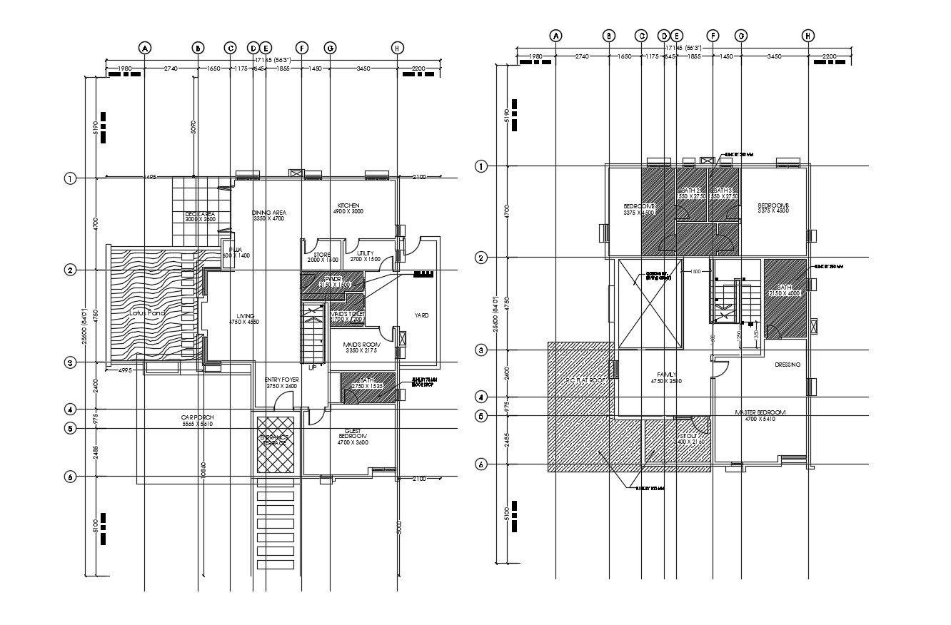
House plan with detail dimension in autocad which includes detail of the Living room, bedroom, kitchen, dining room, bathroom, toilet, porch, etc.
File Type:
DWG
File Size:
342 KB
Category::
Architecture
Sub Category::
House Plan
type:
Gold
Uploaded by:
Eiz
Luna
View Profile
Download
Add to libary
find Latest
Related
Files