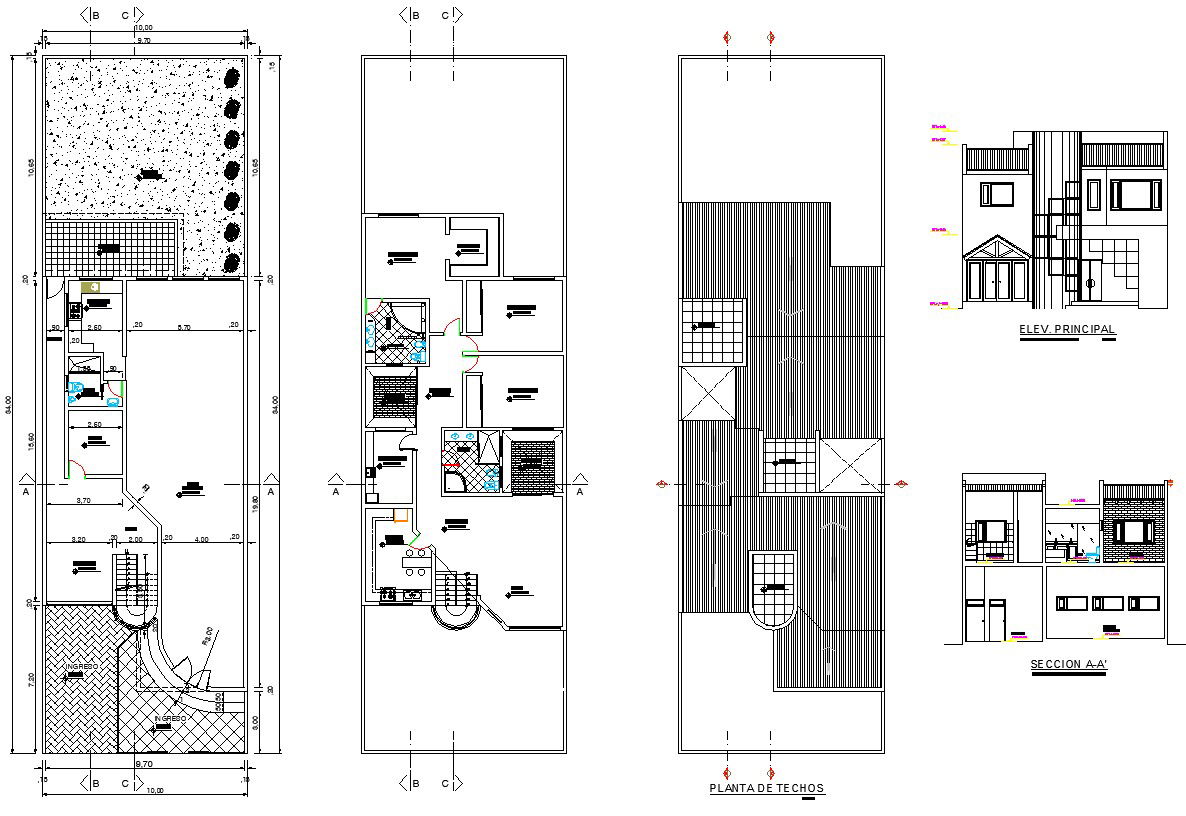
Design of House plan with detail dimension in dwg file
Description
Design of House plan with detail dimension in dwg file which provides detail of drawing room, bedroom, kitchen, dining room, bathroom, toilet, etc it also gives detail of elevation and section.

Uploaded by:
Eiz
Luna

