LOGIN
HOME
CATEGORIES
UPLOAD FILE
PRICING
HOUSE PLAN
ABOUT US
CONTACT US
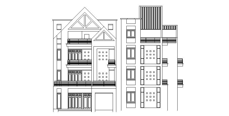
Elevation drawing of house design in dwg file
Home
Categories
Architecture
House Plan
Elevation drawing of house design in dwg file
Uploaded by:
Eiz
Luna
View Profile
View Profile
Description
Elevation drawing of house design in dwg file which provides detail of front elevation of the house, detail of doors and windows, etc.
File Type:
DWG
File Size:
187 KB
Category::
Architecture
Sub Category::
House Plan
type:
Gold
Uploaded by:
Eiz
Luna
View Profile
Download
Add to libary
find Latest
Related
Files