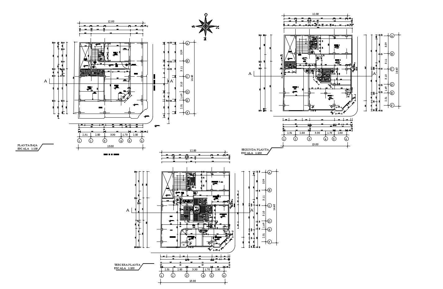
Plan of a residential building with detail dimension in dwg file
Description
Plan of a residential building with detail dimension in dwg file which provides detail of hall, bedroom, kitchen, dining area, bathroom, toilet, etc it also gives detail of the office area.

Uploaded by:
Eiz
Luna

