Elevation drawing of building with detail dimension in autocad
Description
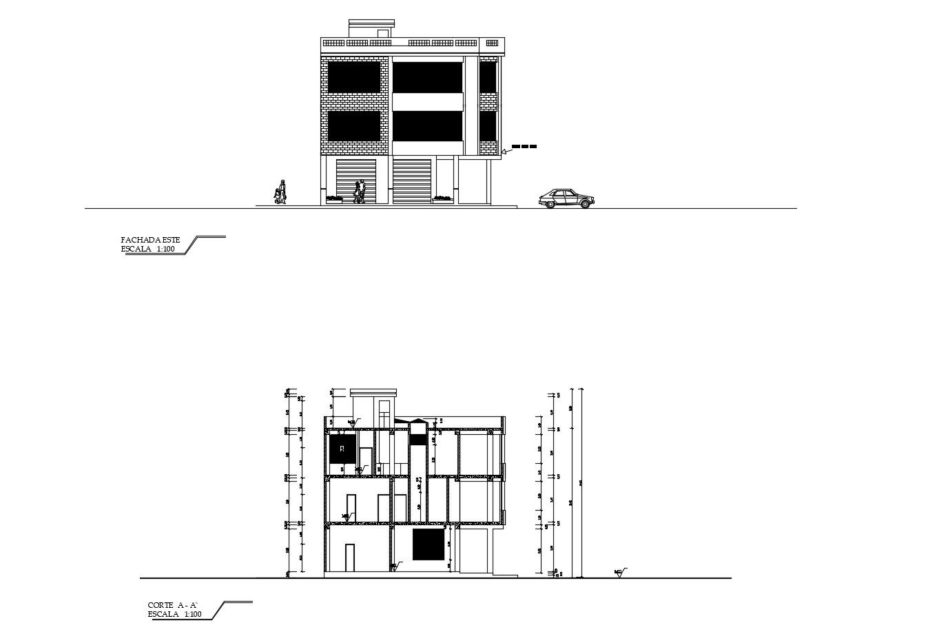
Elevation drawing of building with detail dimension in autocad which provides detail of front elevation, detail of the section, detail of floor level, etc it also gives detail of parking area.

Uploaded by:
Eiz
Luna

