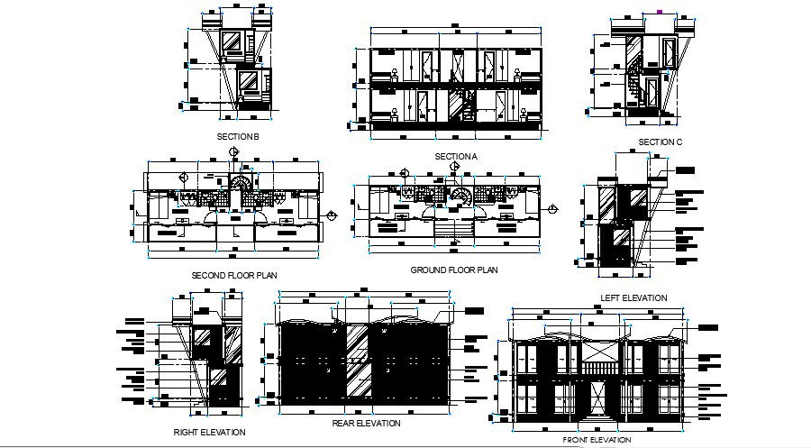
Drawing of plan container with elevation and section in dwg file
Description
Drawing of plan container with elevation and section in dwg file which provides detail of front elevation, rear elevation, left elevation, right elevation, detail dimension of the hall, room, WC and bath, etc.

Uploaded by:
Eiz
Luna

