LOGIN
HOME
CATEGORIES
UPLOAD FILE
PRICING
HOUSE PLAN
ABOUT US
CONTACT US
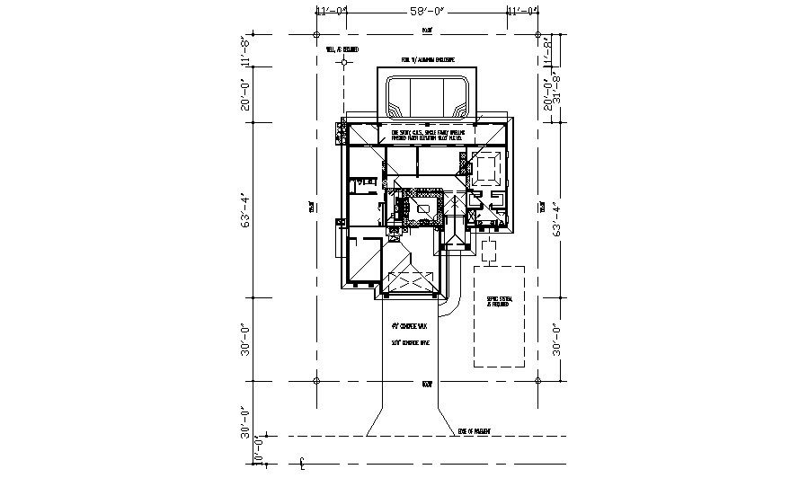
Drawing of single storey residence in autocad
Home
Categories
Architecture
House Plan
Drawing of single storey residence in autocad
Uploaded by:
Eiz
Luna
View Profile
View Profile
Description
Drawing of single storey residence in autocad it includes roof plan, drawing room, kitchen, bedroom, toilets, wash area, and verandah, etc
File Type:
DWG
File Size:
285 KB
Category::
Architecture
Sub Category::
House Plan
type:
Gold
Uploaded by:
Eiz
Luna
View Profile
Download
Add to libary
find Latest
Related
Files