LOGIN
HOME
CATEGORIES
UPLOAD FILE
PRICING
HOUSE PLAN
ABOUT US
CONTACT US
Apartment Design Plan In AutoCAD File
Home
Categories
Architecture
Apartment Drawing
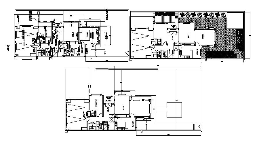
Apartment Design Plan In AutoCAD File
Uploaded by:
Eiz
Luna
View Profile
View Profile
Description
Apartment Design Plan In AutoCAD File it includes detail of the kitchen, drawing room, bedroom, toilet, and utility area, maids room.
File Type:
DWG
File Size:
1.8 MB
Category::
Architecture
Sub Category::
Apartment Drawing
type:
Gold
Uploaded by:
Eiz
Luna
View Profile
Download
Add to libary
find Latest
Related
Files